ID об'єкта : 2Q51513 під єОселя
Продаж 37,000$ - Квартира, Новобудова
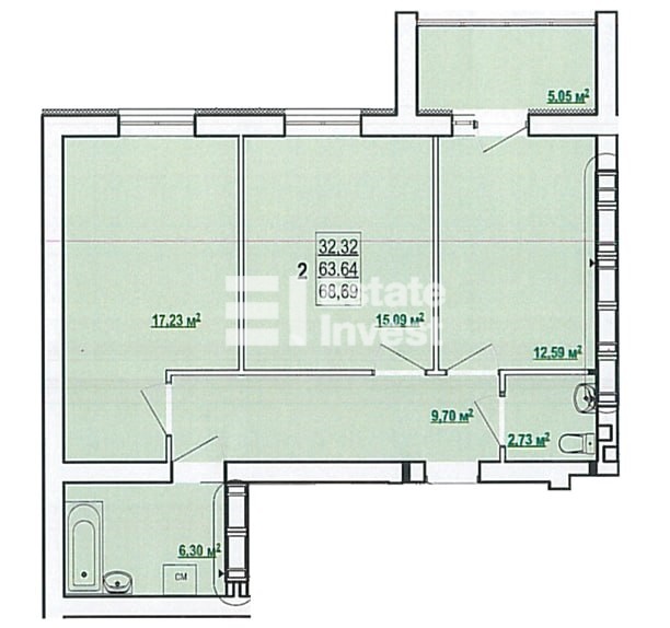
Продам 2 кімн. квартиру по пр. Перемоги, 86А, ЖК Перемоги-2. Поверх 5/9. Площа 69/32/14 кв. м. У квартирі вже виконані чорнові роботи: проведена електрика, оштукатурені стіни, засклений балкон, виводи під кондиціонери в кожній кімнаті та на кухні.
До станції м. Перемога – 10 хвилин пішки, поруч супермаркети, магазини, транспортна зупинка, лісопарк.
Документи готові.
Можливий продаж за програмами: єОселя, єВідновлення.
Підписуйся на наш бот t.me/Kharkivestate_bot повідомить Вас про всіх нових об’єктах за Вашим запитом.
Подивитися схожі об'єкти
















